
Die Architektur
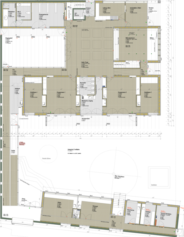
Ein schlankes, eingeschossiges Ateliergebäude und die verbindende Rampe zum zweigeschossigen Hauptgebäude schützen Haus und Garten vor dem Verkehrslärm der stark frequentierten Basler-
strasse. Ein nach Osten geöffneter großer Gartenhof entsteht. Die Rampe übernimmt dabei die barrierefreie Erschließung. Durch die Zweigeschossigkeit des Hauptgebäudes bleibt genug Fläche für die Außenanlagen. Die Öffnungen Räume sind so angeordnet dass ein Wechselspiel von geschützten Räumen, spannenden Ausblicken und differenzierten Sichtbeziehungen entsteht.
Im EG befinden sich Garderoben, Sanitärbereich, Anlieferung und Essküche; im OG sind sämtliche Personalräume und Sanitärbereiche angeordnet. Hier sitzt auch die Treppe.
Der Bewegungsraum ist ein transparenter, durchgesteckter Raum, der durch seine Zweigeschossigkeit zum „Forum“ der Anlage wird. EG und OG werden räumlich angenehm miteinander verbunden.
Die Gruppenräume sind alle südorientiert. Die zwei Gruppenräume für Klein- und Kleinstkinder im EG haben direkten Anschluss an den Gartenhof. Die beiden Gruppenräume für die etwas älteren Hortkinder im OG erhalten eine eigene Freiterrasse.
Über eine Rampe ist der Hort mit dem Ateliergebäude im Halbgeschoss verbunden. Auf diesem Weg gelangen sie zu Atelier, Werkstatt und Gartenhof. Zwischen Drinnen und Draußen ist eine Schmutzschleuse angeordnet. Unter der Rampe findet sich ausreichend Lagerraum für die Außenspielgeräte. Diese Rampe bietet – neben der barrierefreien Verbindung zwischen EG und OG - auch zusätzlichen Bewegungsraum im Haus.
Der Gartenhof mit Grünfläche ist mit Sandkiste, Arena, flexibler Bühne und diversen Spielgerätenbestückt.
„Das Werkstattgebäude“ mit Atelier, Werkstatt, Waschküche und Haustechnik ist als einfaches, ortstypisches Nebengebäude konzipiert. Das Gebäude bietet ein interessantes und kommunikatives „Vis á Vis“ zu den Gruppenräumen.
Für die verschiedenen Altersgruppen bestehen ebenso eigene Bereiche und Rückzugsmöglichkeiten wie auch die Möglichkeit der Begegnung.
Diesem Konzept verpflichtet ist auch die zentrale Eingangshalle: Sie ist nicht nur Eingang und Durchgangsfläche, sondern in erbindung mit dem Multifunktionsraum zugleich Theaterbühne sowie wetter-
unabhängiger Spiel-, Musik- und Bewegungsraum.

